In addition to our regular truck refurbishment work, we have been working hard behind the scenes planning our future living space floor plan. When we got our truck, it had a custom built living habitat module designed and built for the previous owner.
Our original plan was to completely change the floor plan and re-work the interior. After we got the truck, we realized that although the box didn’t have the layout we wanted, it was actually pretty nice inside. Instead of gutting a perfectly good habitat box, we recently sold the box that came with the truck, and over the past few weeks, we designed a new habitat box that meets all of our specific needs.
A few days ago, we ordered the new habitat from Total Composites. It is similar to other boxes that they have made in the past, but this one is specific to our dimensions and floor plan. The habitat box will need assembling and does not come with any interior. Over the last two years, we have accumulated a lot of the items for the interior.

Our New Habitat Specs
- Exterior Dimensions: 11’5″ long, 7’2.5″ wide, 6’11″ tall
- Interior Dimensions: 6’10.5″ wide with 6’4″ standing head height
- Walls are 50mm thick composite sandwich panel
- The ceiling, floor, forward, and and aft wall are 84mm thick composite sandwich panel
- Steel / composite hardpoints embedded in floor and back wall for mounting
- Habitat is mounted to a Mercedes torsion free subframe
- Door, windows, cargo access hatches and roof hatch from Tern Overland
The windows are European style, double glazed acrylic, top hinge, with integrated blinds and screens. Two large roof vents and solar panels are on the roof. In total there are 7 screened openings for excellent cross flow and natural light.

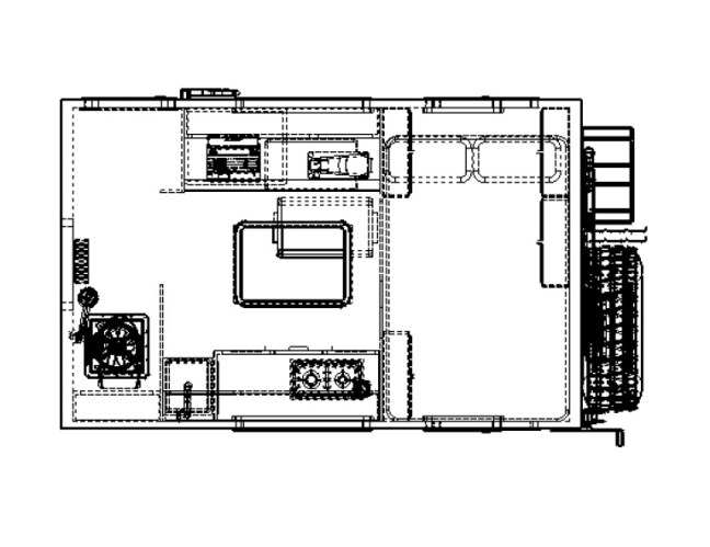
Floor Plan Details
Our new layout incorporates a pass through from the cab into a combined bathroom entry. There is a raised permanent bed in the back of the habitat with a large storage area underneath the bed accessible from the outside. The center of the habitat is a large open area dedicated to a kitchen on the left side and a project/work/eating area on the right side. The spare tire and cargo are mounted to a custom frame on the back of the habitat.
